暖通空调专业识图培训教程
发布时间:2015/4/14 信息来源:武汉中央空调精品超市
本章围绕本教材给出的某高层综合楼范例,介绍建筑设备中暖通空调专业识图的有关内容,包括:暖通空调专业施工图识图图例、暖通空调专业施工图图纸内容、常用空调系统的主要组成部分、常用空调系统工作流程。
5.11.暖通空调工程是为解决建筑内部热湿环境、空气品质问题而设置的建筑设备系统。
2.设备众多、系统复杂是暖通空调工程的特点,在识图中应了解建筑功能、识别暖通空调系统、提取有用的信息。
5.1.1暖通空调工程的主要功能
(1)为避免冬季、夏季室内温度、湿度过低或过高,室内工作和生活的人员所产生不舒适感,采用人工方式,消耗一定的能源,按需要搬运转移空气中的热量、水分,营造使人体感觉舒适的室内环境。
(2)为使在建筑物内部工作的机器、设备及部件正常运转,维持室内合乎机器设备正常运转的温湿度。
(3)按消防法规要求,暖通空调工程还担负着为在火灾发生时利用机械通风设备,强制排出火灾燃烧烟气和强制输入室外新鲜空气的作用。
(4)在大多数附有地下室或无外部通风构造的室内空间的建筑物中,暖通空调工程利用机械通风设备强制实现室内外空气的交换。
设备是暖通空调工程的心脏,其功能有提供冷热源、提供输送动力、热能转换等。具体而言,提供冷热源的设备即空调主机,包括制冷机组、供热锅炉等,它们通过输入能量,制造或产生我们需要的冷量或热量;提供输送动力的设备主要指水泵和风机,它们提供了输送动力,使得流体按我们的需要流动;热能转换则是根据我们的需要将流体中的热能通过换热装置转换出来,常见的水-水换热器、汽-水换热器和空气-空气换热器属于此范畴。值得一提的是,我们常使用的风机盘管、空气处理机组等设备组合了风机与换热盘管,既提供了空气输送动力又提供热能交换,一般被称为空调末端设备。
在空调工程中为保证空气品质还有空气净化设备,如各种过滤器、吸附装置、消毒灭菌设施等;在水系统中则有各种各样的水过滤装置、水处理装置和加药装置;为实施自动控制而设置的各种电动风阀、电动水阀、温控装置等也常被纳入暖通空调设备范畴,但它们在系统中主要起辅助、提升系统品位的作用,我们一般称之为辅助设备或设施。
1.空调冷源设备
(1)空调冷源设备的特点与分类
集中空调系统,一般所担负的空调面积大、房间多,因此,空调冷源设备容量通常很大。空调工程能耗是建筑能耗中的重要部分,而冷源设备又是空调工程的主要能耗设备,因此,冷源设备的选择关系到工程的投资、运行费用及能源消耗。冷源设备在空调工程具有十分重要的地位。
空调工程中常用冷源的制冷方法主要分为两大类:一类是蒸汽压缩式制冷,另一类是吸收式制冷。压缩式制冷,根据压缩机的形式可以分为活塞式(往复式)、螺杆式和离心式等,一般利用电能作为能源。吸收式制冷,根据利用能源的形式可以分为蒸汽型、热水型、燃油型和燃气型等,后两类又被称为直燃型,这类制冷机以热能作为能源。根据冷凝器的冷却方式又可分为水冷式、风冷式。根据机型结构特点还有压缩机多机头式、模块式等等。
(2)电制冷水冷式冷水机组
电制冷水冷式冷水机组属于蒸汽压缩式制冷范畴,一般主要由压缩机、蒸发器、冷凝器、膨胀阀、自动控制和保护装置组成。顾名思义水冷式冷水机组的冷凝器利用水冷却,一般利用循环冷却水,随着科技的发展和节能的需要,也有采用地表水、地下水冷却的。在实际工程中我们根据压缩机类型一般分为离心式冷水机组、螺杆式冷水机组、活塞式冷水机组和涡旋式冷水机组。
离心式冷水机组单机容量大,制冷性能系数COP值高,但在部分负荷下运行时容易发生“喘振”现象。螺杆式冷水机组由于在压缩机构造上的特点,在部分负荷下仍能稳定、高效地运行,常被用于负荷波动大、需要调节的场合。活塞式冷水机组和涡旋式冷水机组均为小容量制冷机,其中活塞式冷水机组由于振动大、运行维护复杂,目前运用较少,而涡旋式冷水机组运行噪声小,调节方便,在小型工程中运用较多。

5.1.2暖通空调工程的主要设备
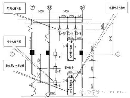
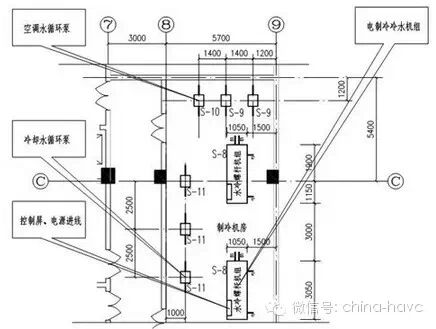
图5.1 电制冷水冷式冷水机组的图面示意
图5.1为电制冷水冷式冷水机组的图面示意,一般来说,在图纸上设备以方框表示,图中的电制冷水冷式冷水机组为水冷螺杆式冷水机组,我们可以看到主要的接管有空调水接管、冷却水接管,均为一进一出,旁边的空调水循环泵、冷却水循环泵则与空调主机配套形成完整的制冷循环过程。设备接管位置需要留出安装检修空间。而设备控制屏和电源进线位置则需要留出操作空间。设备的参数等要求应由图纸的设备表查出。
知识拓展:
性能系数COP
性能系数(COP)又被称为能效比,是在规定条件下制冷机的制冷量与其净输入能量之比。水冷冷水机组的COP值较高,一般在4~6,其中水冷离心机组COP值一般为5~6,水冷螺杆机组的COP值一般为4.4~5.2,水冷活塞机组或水冷涡旋机组的COP值一般为4~5。风冷热泵机组的COP值一般为3左右。
(3)电制冷风冷热泵机组
电制冷风冷热泵机组是指利用风冷冷却的蒸汽压缩式制冷机组,其压缩机类型主要有螺杆式、涡旋式和活塞式。其中螺杆式压缩机被用于大型的风冷热泵机组,涡旋式和活塞式多用于小型或模块式风冷热泵机组。
风冷热泵机组在制冷循环上设有四通换向阀,蒸发器与冷凝器可以互换,从而实现夏季制冷冬季制热的功能。其优点是供热效率高,制热COP可达3.0以上,简化了空调热源的设置,在中、小建筑中得到广泛的应用,缺点是夏季COP低于水冷机组,在夏热冬冷地区的冬季工况中,结霜的现象使得供热效果不佳。
(4)溴化锂吸收式冷水机组
溴化锂吸收式冷水机组是利用水在高真空度状态低沸点蒸发吸收热量而达到制冷目的的制冷设备。溴化锂水溶液作为吸收剂吸收其蒸发的水蒸汽,从而使制冷机连续运转,形成制冷循环。
溴化锂吸收式冷水机组一般可分为蒸汽型、直燃型和热水型等类型,直燃型包括燃油和燃气两种。它们之间的区别主要在于高压发生器,在高压发生器内吸收水蒸汽后变成的溴化锂稀溶液被加热蒸发,浓缩成溴化锂浓溶液,这个过程是吸热过程,其热源可以是蒸汽、热水,也可以是直接在高压发生器内燃烧燃料如油或气。所以,上述溴化锂冷水机组的分类和命名,主要是根据高压发生器所应用的热源类别而定。溴化锂吸收式冷水机组的优点是:以热能驱动,不直接耗用大量电能;不应用氟利昂类制冷剂,制冷剂采用水,对环境无影响,有利于环境保护;运行平稳,无噪声,无振动。
对于直燃型溴化锂吸收式冷水机组,夏季制冷,冬季可以制热,也可以同时供冷和供热,除了满足空调冷、热源的要求外,还可以提供其它生活方面的供热,做到了一机多用,可以节省占地面积和投资。
蒸汽压缩式制冷系统中,在蒸发器内蒸发吸热,经压缩机压缩后,在冷凝器内放热的工作物质被称为制冷剂。可作为制冷剂的物质很多,空调工程制冷机广泛应用氟里昂作为制冷剂。自从开发出CFC类制冷剂(氯氟碳化合物的简写)以来,空调制冷曾较多采用的制冷剂有CFC-11、CFC-12、CFC-500等,通常用R-11、R-12、R-500表示。由于它们具有安全、性能稳定、无毒、热效率高等优点,长期被广泛应用于空调制冷。但是,它们在大气中具有极高的稳定性,且对臭氧层有很大的破坏性:CFC类制冷剂漏入大气后,上浮到同温层中,由于受到阳光中紫外射线的影响,其中所含的氯原子被分解出来,而氯原子又使臭氧分子分解,产生氧化氯和一个普通的氧分子,氧化氯分子又与其他的臭氧分子作用,将氯原子还原出来,氯原子又会按上述反应过程去破坏其他臭氧分子。因而,臭氧层中的臭氧遭到联锁性的破坏。臭氧层是防护地球生物免受太阳紫外线影响的一个天然屏障,因此CFC类制冷剂对环境有破坏作用,商家相继推出相应的替代制冷剂,如用HCFC-123替代R11,HFC-134a替代R12,R22由于对环境影响较小,根据国际公约在2030年前仍可使用。从目前的认识水平看,HCFC-123和HFC-134a虽然是当前应用最广泛的主要制冷剂,性能也比较好,但它们对全球环境均存在或多或少的有害影响,不是对环境完全友好的制冷剂。从长远来看,它们也是一种过渡性制冷剂,还期待开发出一些热工性能好,对环境更友好的替代制冷剂。
2.空调热源设备
(1)暖通空调热源设备的分类
按热源介质分可分为蒸汽锅炉和热水锅炉;按能源燃料种类分可分为燃煤锅炉、燃油锅炉、燃气锅炉、电锅炉和热泵设备;按设备承压分可分为常压热水锅炉、真空锅炉、承压锅炉;按热源的来源可分为自备热源、城市供热、工厂余热和废热等。
(2)蒸汽锅炉
蒸汽锅炉根据提供蒸汽的压力分为压力锅炉和低压生活锅炉。承压低于0.1MPa的蒸汽锅炉在暖通空调供热中属于低压锅炉,不受压力容器类相关规范规程的监督。承压大于等于0.1MPa的蒸汽锅炉属压力容器,应当遵守蒸汽锅炉监察规程的规定,空调热源所选择的蒸汽锅炉一般是压力容器。当选用蒸汽锅炉作热源时,需要进行二次换热,将蒸汽通过热交换器加热空调循环水。
蒸汽锅炉可以是燃煤锅炉,也可以是燃油、燃气或电热锅炉。从环保角度而言,燃煤锅炉污染严重,尤其是在城市里,使用受到很大的限制。燃油、燃气和电热锅炉均能满足环保要求,但考虑燃料价格和国家节能政策因素,目前使用较多的是燃气锅炉。
知识拓展:压力容器
运行中最高压力大于等于0.1MPa,内直径大于等于0.15m且容积大于等于0.25m3的容器被成为压力容器。出于安全生产的需要,我国安监部门对锅炉等压力容器的设计、生产、运行均有一系列的标准和规程规范。
(3)热水锅炉
热水锅炉根据运行压力分为承压热水锅炉、常压热水锅炉和真空热水锅炉。
承压热水锅炉可以提供水温高于100℃的高温热水,在我国北方的集中供热系统中运用较多,属于压力容器。
常压热水锅炉是指锅炉在运行时所承受的压力相当于大气压,即锅炉本体不承受压力,而空调供水是通过二次换热进行加热,空调循环水可以按设计要求承受不同压力,与锅炉本体无关。常压热水锅炉通常可分为内置式换热器外置式换热器两类,一般提供热水温度不超过90℃。
真空热水锅炉的锅炉本体内保持真空,锅炉本体也处于负压下工作,运行安全可靠。真空热水锅炉炉内水容积小,热水供应启动速度快,炉内充水可用软水或纯水,不结垢、无腐蚀,在蒸汽介质下,换热管的传热效率比较高,但需要设置一套真空装置。锅炉内的水容积比较小,相应的其热容量也比较小。

图5.2 热水锅炉的图面示意
图5.2为热水锅炉的图面示意,设备外形按比例绘制在锅炉房内,燃烧机位置的突出是表示该位置需要经常操作、检修和维护,需要留有足够的空间。在接管方面需要落实设备的要求,本例中设备表除标明设备供热能力参数外,还标明为内置两套换热器,分别提供空调热水和卫生热水,则锅炉本体应有空调热水的供回水接管和卫生热水的供回水接管,锅炉烟道接口、排污管接口、通气管接口等需要通过设备厂家提供的随机文件确认。
(4)热泵设备
热泵机组在制冷循环上设有四通换向阀,蒸发器与冷凝器可以互换,从而实现根据需要制冷或制热的功能。根据低位热源的种类可以分为空气源热泵(常称为风冷热泵)、地表水水源热泵、地下水水源热泵等。
热泵设备冬季提供的空调热水温度一般为45℃,在需要卫生热水的场合,也可以提供50℃以上的热水,由于提供热水的温度并不高,热泵设备有比较高的供热性能系数,空气源热泵的性能系数一般在3以上,地下水水源热泵的性能系数可以达到4.8以上。
3.流体输送设备与空气处理设备
我们常遇到的流体输送设备是水泵与风机,在暖通空调工程中,它们将热能的载体(水或空气)输送到有需求的地方,同时也消耗了输送能耗。
(1)水泵
暖通空调工程中使用的水泵一般式清水泵或热水泵,其输送液体为不含有体积超过0.1%和粒度大于0.2mm的固体杂质,清水泵输送液体温度为0~80℃,热水泵可以输送130℃以下的液体。比较特殊一点的是蒸汽锅炉给水泵,由于其要求小流量、大扬程,一般采取多级泵。
水泵的主要参数是流量、扬程和电机功率,高层建筑空调水系统为闭式循环,水泵承受的系统静压力远高于水泵自身的扬程,应注意核对,一般而言在最高工作压力不大于1.6MPa时可不必特殊订货。

图5.3 水泵接管的图面示意
图5.3为水泵接管的图面示意,图中表示的为立式离心泵,进水管设有闸阀、变径管、软接头,出水管设有软接头、变径管、止回阀和球阀。进出水管上设置的压力表是为了在运行中了解水泵的实际运行参数。我们可以注意到,在设备的进出口接管段设有软接头,设备与基础的连接设有隔振器,这些是为了避免水泵运行的振动通过基础和管道传递出去。
(2)风机
v暖通空调工程中常用的风机按其叶轮的作用原理可以分为离心式风机、轴流式风机和斜流式风机。离心式风机具有流量范围广、风压高的特点,轴流风机则具有风压低、流量大的特点,斜流式风机介于前两者之间。
根据风机输送介质的特点,风机有防爆风机、防腐风机、锅炉引风机,民用建筑中还有消防排烟风机。

图5.4 风机的图面示意
图5.4为风机的图面示意,本例中风机为柜式离心风机,风机以其外形轮廓线表示,进风口和出风口设有风管软接头,可以在风机运转时隔离风机振动的影响。风机的参数需要从设备表中提取。
知识拓展:水泵与风机的并联运行
水泵与风机的并联运行是我们常遇到的情形,在一个暖通空调系统中,管道是固定的,如果有两台或多台输送设备并联运行,系统流量会增加,但不会与台数成倍数关系。这是因为固定的管路系统在流量增加后,阻力也随之增加,根据相关理论,阻力与流量的平方成正比,所以体现在系统的流量上就并不是与设备台数成倍数关系了。如果在正常运行工况下两台设备并联的流量为正常流量,那么单台设备运行时,其流量要大于正常流量的一半,这也导致了电机输出功率增加而有可能烧坏电机。
(3)热交换设备
热交换设备是暖通空调工程中常用的设备,用于将不同温度的热媒之间进行热能的转换,如用高温热水或蒸汽加热低温水。对热交换设备的要求是传热效率高,体积小,结构简单和节省金属耗量,维修保养方便,阻力小等。
热交换器根据热媒的种类可分为汽-水换热器、水-水换热器;根据热交换方式可分为表面式热交换器和直接式热交换器;根据换热器的体积可以将其分为容积式换热器、半容积式换热器和即热式换热器。
表面式热交换器是加热热媒与被加热热媒不直接接触,通过金属表面间接进行热交换,直接式热交换器是两种热媒直接混合达到热能转换的目的。
容积式换热器在工程中常遇到的是壳管式换热器,其结构简单,造价低,制作方便,运行可靠,维修方便。浮动盘管式热交换器属于半容积式换热器传热效率比较高,结构紧凑,占地面积小,运输、安装都十分方便。板式换热器属于即热式换热器,其特点是结构紧凑、体积小,拆洗方便,承压能力高,另外,板式换热器还有一个突出的特点是能够在小温差下传热,因而也广泛用于空调冷水系统竖向分区时的换热设备。
(4)空气处理设备
空气处理设备用于对房间空调送风进行冷却、加热、减湿、加湿以及空气净化等处理,通常使用的有风机盘管、柜式空调器和组合式空调机组等,在暖通空调工程中常被称为空调末端设备。
风机盘管是空调工程中广泛应用的空气处理设备,由风机、换热盘管、机壳、凝结水盘等组成。风机盘管根据安装形式分为卧式暗装、卧式明装、立式暗装、立式明装等几种基本形式,根据送风压力可分为普通型和高静压型。风机盘管的主要设备参数是风量、风压、表冷器排数、运行噪声、电机功率等,产品样本所标注的冷量和热量是在指定工况下的情形,具体运用中应考虑实际工况的修正。
柜式空调器的构造和原理基本与风机盘管相同。柜式空调器处理空气的能力和机外余压都比风机盘管要大,可以接风管进行区域性空调。柜式空调器按结构形式可分为卧式和立式两类,按处理工况可分为空调机组和新风机组,空调机组的设计进风工况为室内回风工况,新风机组的设计进风工况为室外新风工况。
组合式空调机组是由各种不同的功能段组合而成的空气处理设备。组合式空调机组的基本功能段有:混合段,表冷段,加热段,喷淋段,过滤段,加湿段,新风、排风段,送风段,二次回风段,中间检修段,送、回风机段,消声段等。根据空调设计对空气处理过程的需要,可选用其中某些功能段任意组合。

图5.5 末端设备的接管示意
图5.5为末端设备的接管示意图,风机盘管与吊顶式风柜的水管接管均有三个接口,分别是供水管、回水管和凝结水管,考虑设备振动的因素,接口处均设置软接头。一般来说考虑排出设备内热交换盘管的空气气的因素,回水管在上,供水管在下,凝结水管为自流排水,因此在设备底部接管。两者也有不同之处,由于吊顶式风柜的处理风量大、风压高,设备的尺寸要比风机盘管大,一般要利用梁内空间安装,因此吊顶式风柜的回水管上需要设置自动放气阀,而风机盘管除了在设备本体设置手动放气阀外,一般可以在梁下安装,利用回水管将盘管内空气带出。在凝结水的接管处理上,风机盘管的凝结水盘是露在外部的,因而直接接管即可,吊顶式风柜因为凝结水盘在设备内部,运行时设备内部存在负压,凝结水管需要设置水封,以利于稳定地排出凝结水,在这个环节上吊顶式风柜与组合式空调机组是相同的。
知识拓展:组合式空调机组的小知识
组合式空调机组的外壳通常是采用双层钢板(彩钢板)中间用聚氨脂发泡做作保温层,也有的采用钢板加保温层的做法。混合段设有回风和新风接口,作为新风和回风在此混合之用。表冷段和加热段都是采用表面式换热器作为热交换器,根据热媒的情况实现冷却、加热功能,表冷段可以使用7℃的冷水或60℃的热水作为热媒;加热段一般使用高温热水或蒸汽作为热媒,两种热媒的换热器结构有一定差别,选型时应标明以免误用。表冷段和加热段是分开设置还是合用一套应根据空气处理过程的需要而定。加湿段用于对空气进行加湿处理,一般在有蒸汽来源时采用蒸汽加湿,也有的采用电加热水产生蒸汽用于加湿。过滤段是对空气进行净化处理,根据对洁净度的要求和空气的质量,可选用粗效过滤器或粗效加高效过滤器两级过滤。中间检修段用于设备检修和运行维护,如热交换器的维修、过滤器的清洗和滤料的更换等,应根据组合情况的需要设置。喷淋段的作用比较复杂,它根据水温的变化可以实现冷却或加热、加湿或减湿等功能,相应的其运行管理也比较复杂,一般应用不多。
5.1.3暖通空调系统的简介
暖通空调系统涵盖的范围比较广泛,采暖、通风、空调、冷热源系统均属于暖通空调系统。暖通空调系统为建筑内部空间提供舒适的工作条件、生活条件,可以说建筑的外在美要看建筑造型和立面,内在美则要看暖通空调系统运行的效果,所以暖通空调系统在建筑中占有很重要的地位。
1.采暖系统简介
采暖系统由热源或供热装置、散热设备和管道组成,可以使室内获得热量并保持一定温度,以达到适宜的生活条件或工作条件。采暖系统的划分一般以热媒类型分为低温热水采暖、高温热水采暖、低压蒸汽采暖和高压蒸汽采暖,也有以散热设备形式分为散热器采暖、辐射采暖和热风机采暖。
在民用建筑中,采暖系统以低温热水采暖最为常见,散热设备形式也以各种各样的对流式散热器和辐射采暖为主。热源方面在北方严寒和寒冷地区由城市集中供热热网提供热源,在没有集中供热热网时则设置独立的锅炉房为系统提供热源。
长江中下游地区单独设置采暖系统的建筑并不多见,大部分建筑在空调系统的设置中利用空调系统向建筑提供热量,保证室内舒适性。随着人民生活水平的提高,部分高档次住宅设置了分户的采暖系统,热源采用燃气壁挂炉,散射设备采用散热器方式或地板辐射采暖方式。
2.通风系统简介
广义的通风系统包括机械通风和自然通风,自然通风利用空气的温度差通过建筑的门、窗、洞口进行流动,达到通风换气的目的;机械通风则以风机为动力,通过管道实现空气的定向流动。机械通风系统的识图与安装是我们本书介绍的重点。
在民用建筑中,通风系统根据使用功能区分主要有排风系统、送风系统、防排烟通风系统,也有在燃气锅炉房等使用易燃易爆物质或其它有毒有害物质的房间设置事故通风系统、厨房含油烟气的通风净化处理系统等。通风系统的设置需要了解建筑功能需求,其过程不仅有空气的流动,往往还伴随着热、湿变化。
知识拓展:风量平衡、热平衡与湿平衡
根据能量守恒与质量守恒的原理,通风系统具有风量平衡、热平衡和湿平衡的特点。风量平衡即针对某一建筑房间,进入房间的空气质量与排出房间的空气质量相等;热平衡即房间进风与排风的热量差值应等于房间内部热源产热与房间散热之间的差值;而湿平衡则是房间进风与排风的湿量差值应等于房间内部散湿量。这几个平衡是我们理解通风系统的基础。
3.空调系统简介
空调系统是以空气调节为目的而对空气进行处理、输送、分配,并空盒子其参数的所有设备、管道及附件、仪器仪表的总合。
在空调系统的分类上有许多方法,较多的是以负担室内热湿负荷所用的介质分为全空气系统、全水系统、空气-水系统和冷剂系统。
(1)全空气系统:全空气系统的特征是室内负荷全部由处理过的空气来负担,由于空气的比热、密度比较小,需要的空气流量大,风管断面大,输送能耗高。这种系统在实现空调目的的同时也可以实现可控制的室内换气,保证良好的室内空气品质,目前在体育馆、影剧院、商业建筑等大空间建筑中应用广泛。
(2)全水系统:全水系统的特征是室内负荷由一定的水来负担,水管的输送断面小,输送能耗相对较低。典型的全水系统如风机盘管系统、辐射板供冷供热系统,因为其没有通风换气作用,单独使用全水系统在实际工程中很少见,一般都需要配合通风系统一同设置。
(3)空气-水系统:空气-水系统的特征介于全空气系统和全水系统之间,由处理过的空气和水共同负担室内负荷,典型的空气-水系统是风机盘管+新风系统,这种系统由于比较适应大多数建筑的情形,因此在实际工程中也应用最多,酒店客房、办公建筑、居住建筑等大多采用风机盘管+新风系统。
(4)冷剂系统:冷剂系统顾名思义就是由制冷系统的蒸发器或冷凝器直接向房间吸收或放出热量,在这一过程中,负担室内热湿负荷的介质是制冷系统的制冷剂,而制冷剂的输送能量损失是最小的。最常见的冷剂系统是分体式空调、闭式水环热泵机组系统,近年来随着技术的进步,变制冷剂流量多联分体式空调系统(也就是我们俗称的VRV、MRV、HRV等)在实际工程中得到了越来越多的应用,这也是一种典型的冷剂系统。
知识拓展:变制冷剂流量多联分体式空调系统
变制冷剂流量多联分体式空调系统即控制冷媒流通量并且通过冷媒的直接蒸发或冷凝来实现制冷或制热的空调系统,其特点是一台室外机可连接多达40台的室内机,室内机和室外机的配管长度可达150米,可以灵活运用在各种规模、各种用途的建筑物。
在一般情况下,空调系统的分类没有上述那么学究化,常按室内温湿度控制要求分为舒适性空调和工艺性空调,按提供冷热源设备的集中或分散分为中央空调或分体空调。舒适性空调是以人体舒适为目的,室内温湿度没有精度要求,如我们常见的商场、酒店、办公楼等民用建筑;工艺性空调则以满足工艺生产要求或室内设备要求而设置的空调系统,一般对温湿度等参数有精度要求,如医院手术室的净化空调系统、电子厂房的恒温恒湿空调系统、印刷车间的恒温恒湿空调系统等。
在实际工程中,中央空调的称谓可能更加广泛,其含义是由空调主机提供冷热源,通过管道、末端设备将冷、热量提供给有需要的房间,上述的全空气系统、全水系统、空气-水系统和冷剂系统中的变制冷剂流量多联分体式空调系统常被我们称为中央空调系统。
5.2暖通空调专业施工图识图
暖通空调专业中常用的空调工程,一般都包含冷冻水、冷却水系统和风路系统等等,其中风路系统为空调工程所独有,冷冻水、冷却水系统的识图方面的内容,基本等同于给排水工程的识图内容,故而本节对于冷冻水、冷却水系统的识图内容不再另作赘述,着重介绍风路系统和暖通空调设备、部件方面的识图内容。
5.2.1知识要点准备
1.具备建筑构造识图制图的相应基本知识。
(1)具备建筑构造识图制图基本知识:建筑平面图、立面图、剖面图的概念及基本画法;
(2)具备建筑识图的投影关系的概念。
2.具备画法几何的相应基本知识。
(1)具备画法几何中轴测图的基本概念;
(2)具备将平面图转换绘制轴测图的基本能力。
3.具备空间想象能力
(1)具备将平面图、原理图或者系统图中所表现出来的管道系统在脑海中形成立体架构的形象思维能力;
(2)具备通过文字注释和说明将简单线条、图块所表达的暖通空调专业的图例等同认识为本专业不同形态、不同参数的管道和设备。
4.具备基本专业知识
(1)具备理解图中所出现的专业术语、名词的含义;
(2)具备了解设计选用设备的基本工作原理、工作流程;
(3)具备了解设计选用材料的基本性能和物理化学性质。

【 作者:0 】【 打印本页 】【 关闭本页 】